首页
新房
二手房
租房
工商铺
小区
资讯
在线委托
关于我们
小区
地图找房
空中看房
下载正顺好房APP
下载正顺好房APP
好房好生活OKHOME
东方家园
住宅
优秀物管
近商业区
配套成熟
城市中心
分享
分享房源
扫一扫推荐给朋友
您的位置:
正顺好房网
>
小区
>
东方家园
均价(仅供参考)
20169
元/㎡
小区地址
香洲区兴业路33号
建造年代
(2005年)
小区物业
葆力物业
开 发 商
珠海市东方信和投资发展有限公司
管 理 费
1.2 元/平米*月
在售 27 套
在租 12 套
基本信息
在售房源
在租房源
片区经纪人
航拍信息
小区位置
基本信息
基本属性
小区名称
东方家园
区域
柠溪
物业类型
住宅
总户数
782
建筑类型
小高层
建筑年份
2005年
产权
70
管理费
1.2
占地面积
0.00
建筑面积
0.00
容积率
绿化率
开 发 商
珠海市东方信和投资发展有限公司
物业公司
葆力物业
楼盘地址
香洲区兴业路33号
配套学区
市五中 十一小
周边环境
妇幼保健院
学校教育
五中、十一小
交通设施
香柠花园、新村、保健院西门公交站
商业百货
华润万家、柠溪市场、瀚高市场
休闲娱乐
文化广场、华发健身广场
楼盘概况
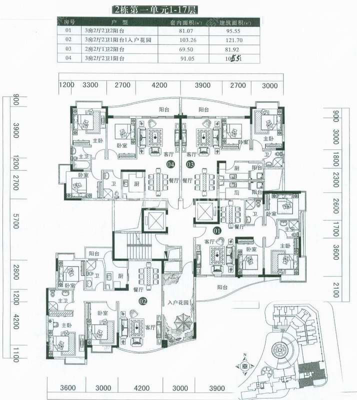
有样板房照片 一房:43.56-53.47 二房:51.76-81.92 三房:95.55-128.95 四房:139.12
历史成交
查看更多 >
东方家园 二手房
查看更多 >
东方家园 租房
查看更多 >
服务之星
航拍信息
全屏观看
小区位置
交通
教育
医疗
购物
生活
娱乐
公交站
地铁站
在线委托
房源对比
咨询客服QQ
联系客服
474738599
400-168-0808
咨询客服电话
09:30 - 18:30
周一至周六
微信公众号
随时随地关注珠海楼市
微信小程序
正顺好房官方小程序
官方APP
扫描下载正顺好房网APP
专家答疑
在线留言
返回顶部
在线留言
感谢您一直以来对正顺好房网的关注和支持,如果您在使用过程中遇到问题或意见建议请留言反馈给我们,谢谢!
如需我们跟您联系或答复的话,请您留下联系方式。
姓名
电话
E-mail
*
反馈内容
验证码
提交反馈
房源对比
修改
取消
新 房
二手房
租 房