小区
下载正顺好房APP
横琴湾区一号
住宅
均价(仅供参考)
39676 元/㎡
小区地址
横琴新区兴盛五路199号
建造年代
(2018年)
小区物业
开 发 商
珠海民商互联网金融大厦开发有限公司
管 理 费
0.0 元/平米*月
基本信息
基本属性
小区名称
横琴湾区一号
区域
横琴
物业类型
住宅
总户数
392
建筑类型
高层
建筑年份
2018年
产权
0
管理费
0.0
占地面积
14700.00
建筑面积
107000.00
容积率
4.5
绿化率
30
开 发 商
珠海民商互联网金融大厦开发有限公司
物业公司
楼盘地址
横琴新区兴盛五路199号
配套学区
横琴中学 横琴小学
周边环境
项目位于横琴大桥南侧,处于“三片十区”中的中央商务区。该区以金融、商务服务为代表的现代产业体系在中央商务区成为重要发展导向,依靠港澳注入顶尖的企业,将打造成大陆金融对外开放的新窗口。目前中央商务区内的写字楼项目有高金中国总部,南方国际金融传媒大厦、横琴国际金融中心大厦、中交金融大厦、中国铁路金融大厦等
学校教育
横琴小学、横琴幼儿园、横琴学校(九年一贯制)、横琴一中、澳门大学横琴校区
交通设施
①港珠澳大桥横跨三地,直达香港,其中一个出口设在横琴,其余出口设在南湾立交和洪湾立交,横琴亦成为唯一陆路连接港澳两地的自贸区。②珠海城际轻轨起点设在拱北轻轨站,首期在横琴设三个站点(金融岛、口岸、长隆),直达拱北,其中口岸站将无缝连接澳门轻轨。
商业百货
横琴进口商品展销体验中心
休闲娱乐
长隆海洋度假区、小横琴山森林公园、大横琴山森林公园、天湖自然风景区、横琴蚝生态园、湾仔竹仙洞等旅游景点
楼盘概况
项目处于“三片十区”中的中央商务区,处于港珠澳大桥落桥位置。该区以金融、商务服务为代表的现代产业体系在中央商务区成为重要发展导向,依靠港澳注入顶尖的企业,将打造成大陆金融对外开放的新窗口。项目占地1.47万平米,总建筑面积10.7万平米。产品有40年产权的商办,70年产权平层公寓和商业。户型设计方正精致,合理,充分利用好每一处空间,项目具办公功能,周边以及金融岛有多个写字楼,汇聚各方商务精英,将是本项目的实力租客,横琴优惠政策吸引大量企业入驻,可作为初创型企业办公用地。
历史成交
横琴湾区一号 二手房
横琴湾区一号 租房
服务之星
小区位置
交通
教育
医疗
购物
生活
娱乐
公交站
地铁站
客厅
2栋35平走廊
客厅
2栋35平入户
外观
2栋35平卫生间
外观
2栋35平阁楼.jpg
2栋35平厨房
客厅
效果图1.png
2栋35平客厅
2栋35平阳台
效果图2.png
效果图3.png
效果图.png
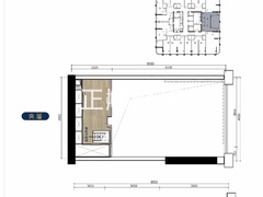
办公平面图
住宅公寓平面图
微信图片_20190313162747.jpg
2栋51平.jpg
2栋37平.jpg
2栋45平.jpg
2栋35平.jpg
2栋49平.jpg
2栋78平.jpg