小区
下载正顺好房APP
金色九洲
住宅
均价(仅供参考)
23737 元/㎡
小区地址
香洲区吉大九洲大道中2001号
建造年代
(2006年)
小区物业
格力物业
开 发 商
珠海置顺经贸有限公司
管 理 费
1.5 元/平米*月
基本信息
基本属性
小区名称
金色九洲
区域
吉大
物业类型
住宅
总户数
480
建筑类型
小高层
建筑年份
2006年
产权
70
管理费
1.5
占地面积
0.00
建筑面积
543824.00
容积率
绿化率
开 发 商
珠海置顺经贸有限公司
物业公司
格力物业
楼盘地址
香洲区吉大九洲大道中2001号
配套学区
九洲中学 北岭小学
周边环境
联通大厦 白莲洞公园 九龙医院
学校教育
北岭小学 九洲中学
交通设施
2路、12路、21路、22路、40路、60路、207路,到中电大厦站; 2路也可以在建业一路站下车
商业百货
万福泉超市 港华超市
休闲娱乐
白莲洞公园
楼盘概况
此楼盘:1栋四个单元1梯4户总高11层,2没有单元2梯4户总高17层,3栋2梯4户总高17层,4栋2个单元2梯6户总高17层
历史成交
金色九洲 二手房
金色九洲 租房
服务之星
航拍信息
小区位置
交通
教育
医疗
购物
生活
娱乐
公交站
地铁站
客厅
454974738505064758.jpg
633757289847572731.jpg
650368704009876384.jpg
2.jpg
3.jpg
4.jpg
1.jpg
5.jpg
sD62F07F119BB40E3BFE7AAAA4F3055A2.jpg
sE046B4B0D7AE4388A3B9F6C96755B435.jpg
sBC0B3324C9B24B74BD1588AA7C3BC6D6.jpg
s054153D1203D43C08014919CBF6171B8.jpg
s1FD6CF8939AA4AE69B4CC98690EEB3D3.jpg
sCA52F56753134A4D8457E8E0009510A4.jpg
s8012376D5D2F48BD8392DEE2915B042B.jpg
sB069C34F4FE343868AF15B71D156CEE5.jpg
sBDA0A07BEE85406C8ACBADEE34F7FA57.jpg
17层复式户型(二层)
4栋4-17层标准层
1栋1、2单元2-10层户型
1栋3、4单元2-10层户型图
1栋顶层复式(一层)
1栋顶层复式(二层)
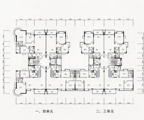
2-3栋1-16层平面图
2-3栋复式平面图(一层)