首页
新房
二手房
租房
小区
资讯
在线委托
关于我们
二手房
地图找房
空中看房
下载正顺好房APP
下载正顺好房APP
好房好生活OKHOME
十四村关口 百花小镇 精装4房带超大私家平台
视野开阔
格局方正
拎包入住
交通便利
收藏
分享
分享房源
扫一扫推荐给朋友
您的位置:
正顺好房网
>
二手房
>
详情页
提示:您的浏览器不支持视频播放,请升级浏览器》》
VR看房
视频看房
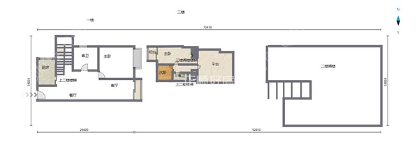
户型图
户型图
百花小镇
138.0
万
9515元/㎡
首付28万 贷款110万 月供7226元,20年(仅供参考)
4房2厅2卫
高楼层/共6楼
145㎡
精装
南
2007年建
住宅
所在区域
中山坦洲
房源编号
962910
更新日期
2025-04-10
OKHOME承诺真实房源,
虚假举报
有奖
加入对比
约车看房
联系客服
基本信息
房源描述
房源点评
房源照片
小区信息
地理位置
加入对比
约车看房
相关经纪人
基本信息
基本属性
区域
中山坦洲
片区
小区
百花小镇
产权
商品房
楼层
高楼层/共6楼
电梯
无
状态
已使用
税费
满2年
装修
精装
朝向
南
空间结构
复式
楼龄
2007年
家具
部分
家电
少量
地板
磁砖
景观
无景
小学
中学
其它
税费参考
承担卖房税费
约 13800 元
承担买房税费
买房税费主要包括:契税:(1%、1.5%、2%、3%)首套或二套<90㎡按1%,首套>90㎡按1.5%,二套>90㎡按2%,第三套起及非住宅按3%
楼层保密说明
按照总层高/3,分为低楼层、中楼层、高楼层,共三个段
* 以上基本属性和交易属性信息仅供参考,购房时以房产证/不动产证信息为准
房源卖点
卖点一
复试精装三加一房 加大盘平台 交通便利 生活方便 步行200米有大型菜市场
相关经纪人
罗辉
幸福里店
别墅
拆迁房
写字楼
学区房
我的微信
扫一扫添加微信
扫码拨号
15818951680
黎立廷
华发新天地三行
别墅
学区房
粤语
普通话
我的微信
扫一扫添加微信
扫码拨号
13411466782
庞裕
幸福里店
粤语
高端物业
大专以上学历
中高档公寓
我的微信
扫一扫添加微信
扫码拨号
13825651781
房源房评
罗辉
幸福里店
本人正顺地产罗辉,2017年入职,主要负责珠海及中山新房和二手房,欢迎来电咨询;15818951680
小区介绍;:小区共17栋,位于坦洲十四村,临近珠海前山100米,,小区户型很多,一房到五房,选择性多,,刚需投资均可,
户型介绍:精装三层复试四房,,共三层,带天台,各付税,房子保养非常好,急售 看房有钥匙
配套::小区近涌尾市场500米,3公里内,华润万家,二城广场,圆明新园,前山人民医院,等配套齐全 欢迎来电咨询;15818951680
房源图片
查看全部
房贷计算器
房屋总价
138.00
贷款成数
2成
3成
4成
5成
6成
7成
8成
8.5成
贷款类别
商业贷款
公积金贷款
组合贷款
贷款年限
30年(360期)
29年(348期)
28年(336期)
27年(324期)
26年(312期)
25年(300期)
24年(288期)
23年(276期)
22年(264期)
21年(252期)
20年(240期)
19年(228期)
18年(216期)
17年(204期)
16年(192期)
15年(180期)
14年(168期)
13年(156期)
12年(144期)
11年(132期)
10年(120期)
9年(108期)
8年(96期)
7年(84期)
6年(72期)
5年(60期)
4年(48期)
3年(36期)
2年(24期)
1年(12期)
商贷贷款额
商贷利率
首套3.00
二套3.00
公积金贷款额
公积金利率
参考利率2.85
参考利率3.325
立即计算
等额本息还款
等额本金还款
首付
万
贷款总额
万
月供
元
总利息
万
本息总额
万
首付
万
贷款总额
万
月供
元
每月递减
元
总利息
万
本息总额
万
注:本次计算仅作为购房参考,结合实际情况了解更精确首付、贷款方案,建议咨询专业顾问
首付和贷款情况咨询
地理位置
交通
教育
医疗
购物
生活
娱乐
公交站
地铁站
小区信息
查看更多 >
百花小镇
小区地址
中山市坦洲镇金源路3
建造年代
2007
小区物业
开 发 商
中山市益铨房地产发展有限公司
管 理 费
1.5 元/平米*月
在售 45 套
在租 7 套
查看全部
历史成交
查看更多 >
同类型二手房
查看全部
同类型租房
查看全部
预车看房
预约提交成功我们有专人与您取得联系
预约日期
随时
星期四
10
星期五
11
星期六
12
星期日
13
星期一
14
星期二
15
星期三
16
您的称呼
先生
女士
手机号码
短信验证码
获取验证码
输入识别码
其他要求
提交预约
相关经纪人
选择相关经纪人进行咨询联系
罗辉
幸福里店
别墅
拆迁房
写字楼
学区房
我的微信
扫一扫添加微信
扫码拨号
15818951680
黎立廷
华发新天地三行
别墅
学区房
粤语
普通话
我的微信
扫一扫添加微信
扫码拨号
13411466782
庞裕
幸福里店
粤语
高端物业
大专以上学历
中高档公寓
我的微信
扫一扫添加微信
扫码拨号
13825651781
手机登陆
密码登陆
立即登陆
立即登陆
虚假举报
房源ID(962910)
您的称呼
手机号码
补充描述
验证码:
提 交
【房源】虚假举报属实,奖励 100 元。
【房评】虚假举报属实,奖励 50 元。
在线委托
房源对比
咨询客服QQ
联系客服
474738599
400-168-0808
咨询客服电话
09:30 - 18:30
周一至周六
微信公众号
随时随地关注珠海楼市
微信小程序
正顺好房官方小程序
官方APP
扫描下载正顺好房网APP
专家答疑
在线留言
返回顶部
在线留言
感谢您一直以来对正顺好房网的关注和支持,如果您在使用过程中遇到问题或意见建议请留言反馈给我们,谢谢!
如需我们跟您联系或答复的话,请您留下联系方式。
姓名
电话
E-mail
*
反馈内容
验证码
提交反馈
房源对比
修改
取消
新 房
二手房
租 房