首页
新房
二手房
租房
小区
资讯
在线委托
关于我们
二手房
地图找房
空中看房
下载正顺好房APP
下载正顺好房APP
好房好生活OKHOME
香洲总站旁 复式4房精装拎包住带私家天台 入读香华小桃园
视野开阔
空气清新
采光充足
格局方正
收藏
分享
分享房源
扫一扫推荐给朋友
您的位置:
正顺好房网
>
二手房
>
详情页
提示:您的浏览器不支持视频播放,请升级浏览器》》
视频看房
客厅
餐厅
餐厅
客厅
客厅
楼梯
楼梯
1楼卧室
1楼卫生间
走廊
走廊
2楼主卧
2楼主卧
2楼主卧
主人房衣帽间
2楼次卧
2楼次卧
阳台
平台
厨房
平台
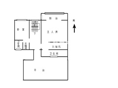
户型图一层
户型图二层
户型图
承泰花园
366.0
万
20998元/㎡
首付73万 贷款293万 月供19164元,20年(仅供参考)
4房2厅3卫
高楼层/共6楼
174㎡
精装
南
2005年建
住宅
所在区域
老香洲
房源编号
1664165
更新日期
2024-11-24
OKHOME承诺真实房源,
虚假举报
有奖
加入对比
约车看房
联系客服
基本信息
房源描述
房源点评
房源照片
小区信息
地理位置
加入对比
约车看房
相关经纪人
基本信息
基本属性
区域
老香洲
片区
南坑
小区
承泰花园
产权
商品房
楼层
高楼层/共6楼
电梯
无
状态
已使用
税费
满2年
装修
精装
朝向
南
空间结构
复式
楼龄
2005年
家具
部分
家电
部分
地板
木地板
景观
园景
小学
香华实验学校
中学
紫荆中学桃园校区
税费参考
承担卖房税费
约 36600 元
承担买房税费
买房税费主要包括:契税:(1%、1.5%、2%、3%)首套或二套<90㎡按1%,首套>90㎡按1.5%,二套>90㎡按2%,第三套起及非住宅按3%
楼层保密说明
按照总层高/3,分为低楼层、中楼层、高楼层,共三个段
* 以上基本属性和交易属性信息仅供参考,购房时以房产证/不动产证信息为准
房源卖点
卖点一
2004年小区,地理位置优越,周边配套成熟,环境优美,安静宜居。
卖点二
1:房屋概况:复式174.31㎡,4房2厅3卫,南北通,带私家天台大平台
卖点三
2:税费情况:各付税
卖点四
3:装修情况:精装修,保养很好,直接入住。
卖点五
4:桃园中学,香华小学(学位未占用)
卖点六
【周边配套】:1公里内茂业百货,优特汇,888街,通大百货。南坑市场,华发健身广场。生活便利。1公里内近香洲总站。交通便利。
相关经纪人
陈海燕
花园市场一行
高端物业
学区房
粤语
我的微信
扫一扫添加微信
扫码拨号
13527285221
陈成松
凤凰花园三行
中高档公寓
高端物业
别墅
写字楼
我的微信
扫一扫添加微信
扫码拨号
13543034651
房源房评
梁芬芬
湾仔沙二行
本人勘察过此房,格局好,使用率高,复式,楼上有大平台,可以种花种菜,小区管理,停车位足,行2分钟有公交站,十多条公交路线,交通非常方便,步行5分钟到南坑市场,一出小区门口有铭泰商业广场,生活便利,香华小学,桃园中学,需要了解更多房源信息可以联系我,看房免费专车接送。谢谢
赵小青
岭南世家分行
您好,欢迎浏览此条房源,本人看过房子现场,了解房子情况 ,欢迎您来电详询:136-2046-7862小青
1.承泰花园,2005年,通风采光极好,看小区园林景观。
2.此房是标准4房2厅3卫2阳台,174.3平方,南向,格局方正,精装。
3.学区:桃园中学,香华实验小学,未占用,看房方便;
4.近学校,市场,医院,配套成熟,生活便利;
赵月凤
夏美分行
本人赵月凤13824146682亲自看过该房子,
2004年小区,地理位置优越,周边配套成熟,环境优美,安静宜居。
1:房屋概况:复式174.31㎡,4房2厅3卫,南北通,带私家天台大平台
2:税费情况:各付税
3:装修情况:精装修,保养很好,直接入住。
4:桃园中学,香华小学(学位未占用)
【周边配套】:1公里内茂业百货,优特汇,888街,通大百货。南坑市场,华发健身广场。生活便利。1公里内近香洲总站。交通便利。
陈海燕
花园市场一行
本人实地勘察了此房,了解房子情况和业主卖房原因,欢迎联系:135-27-28-52-21(微信同号)陈海燕
房屋介绍:
1、【房源情况】 建于2005年
2、【房源户型】 楼梯6楼, 复式4房2厅3卫2阳台,南北向,通风采光好。
3、【税费情况】 业主的税费各付税
4、【装修情况】 房子精装修,可以直接入住。
5、【入學情况】 桃园中學,香华小學
公司介绍:
正顺从2001年到现在17年,珠海.第 一 老 字 号 品 牌,现在公司2000多人,代理珠海.西区.横琴.市区,中山.坦洲.三乡.市区等等100多个项目。
公司理念:人正.事顺.行更远。随时来电咨询相关房产买卖过户,交易流程,银行按揭.抵押办理.等。
个人介绍:
欢迎光临我的网上店铺:
本人小名;陈海燕 职位:门店经理 籍贯:广东
从事房行业6年多,一直坚信公司的成功理念,感谢您能在当前杂乱的房产市场走势。并从千百个房源帖子中,您能选择我, 是咱们的缘分,我会尽心尽力为您做好买房卖房建议……
相信我的专业,真诚为您的购房置业提供真诚.保驾护航服务。
私家车接送看房: 135-27-28-52-21 陈海燕【微信同号】
查看全部
房源图片
查看全部
房贷计算器
房屋总价
366.00
贷款成数
2成
3成
4成
5成
6成
7成
8成
8.5成
贷款类别
商业贷款
公积金贷款
组合贷款
贷款年限
30年(360期)
29年(348期)
28年(336期)
27年(324期)
26年(312期)
25年(300期)
24年(288期)
23年(276期)
22年(264期)
21年(252期)
20年(240期)
19年(228期)
18年(216期)
17年(204期)
16年(192期)
15年(180期)
14年(168期)
13年(156期)
12年(144期)
11年(132期)
10年(120期)
9年(108期)
8年(96期)
7年(84期)
6年(72期)
5年(60期)
4年(48期)
3年(36期)
2年(24期)
1年(12期)
商贷贷款额
商贷利率
首套3.00
二套3.00
公积金贷款额
公积金利率
参考利率2.85
参考利率3.325
立即计算
等额本息还款
等额本金还款
首付
万
贷款总额
万
月供
元
总利息
万
本息总额
万
首付
万
贷款总额
万
月供
元
每月递减
元
总利息
万
本息总额
万
注:本次计算仅作为购房参考,结合实际情况了解更精确首付、贷款方案,建议咨询专业顾问
首付和贷款情况咨询
地理位置
交通
教育
医疗
购物
生活
娱乐
公交站
地铁站
小区信息
查看更多 >
承泰花园
小区地址
香洲区兴国街68号
建造年代
2005
小区物业
自主物业
开 发 商
不详
管 理 费
0.9 元/平米*月
在售 13 套
在租 2 套
查看全部
历史成交
查看更多 >
同类型二手房
查看全部
同类型租房
查看全部
预车看房
预约提交成功我们有专人与您取得联系
预约日期
随时
星期日
24
星期一
25
星期二
26
星期三
27
星期四
28
星期五
29
星期六
30
您的称呼
先生
女士
手机号码
短信验证码
获取验证码
输入识别码
其他要求
提交预约
相关经纪人
选择相关经纪人进行咨询联系
陈海燕
花园市场一行
高端物业
学区房
粤语
我的微信
扫一扫添加微信
扫码拨号
13527285221
陈成松
凤凰花园三行
中高档公寓
高端物业
别墅
写字楼
我的微信
扫一扫添加微信
扫码拨号
13543034651
手机登陆
密码登陆
立即登陆
立即登陆
虚假举报
房源ID(1664165)
您的称呼
手机号码
补充描述
验证码:
提 交
【房源】虚假举报属实,奖励 100 元。
【房评】虚假举报属实,奖励 50 元。
在线委托
房源对比
咨询客服QQ
联系客服
474738599
400-168-0808
咨询客服电话
09:30 - 18:30
周一至周六
微信公众号
随时随地关注珠海楼市
微信小程序
正顺好房官方小程序
官方APP
扫描下载正顺好房网APP
专家答疑
在线留言
返回顶部
在线留言
感谢您一直以来对正顺好房网的关注和支持,如果您在使用过程中遇到问题或意见建议请留言反馈给我们,谢谢!
如需我们跟您联系或答复的话,请您留下联系方式。
姓名
电话
E-mail
*
反馈内容
验证码
提交反馈
房源对比
修改
取消
新 房
二手房
租 房