首页
新房
二手房
租房
工商铺
小区
资讯
在线委托
关于我们
二手房
地图找房
空中看房
下载正顺好房APP
下载正顺好房APP
好房好生活OKHOME
华发新城六期 41平精装一房一厅 高层无遮挡 通风采光好
视野开阔
格局方正
老城旺地
有匙即睇
收藏
分享
分享房源
扫一扫推荐给朋友
您的位置:
正顺好房网
>
二手房
>
详情页
提示:您的浏览器不支持视频播放,请升级浏览器》》
VR看房
视频看房
客厅
厨房
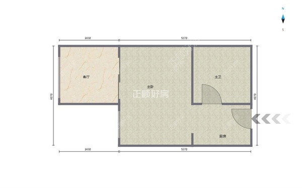
户型图
主卧
卫生间
厨房
主卧
阳台
华发新城六期
100.0
万
24390元/㎡
首付15万 贷款85万 月供3816元,30年(仅供参考)
1房1厅1卫
高楼层/共28楼
41㎡
精装
东
2013年建
住宅
所在区域
南湾
房源编号
1363408
更新日期
2026-05-27
OKHOME承诺真实房源,
虚假举报
有奖
加入对比
约车看房
联系客服
基本信息
房源描述
房源点评
房源照片
小区信息
地理位置
加入对比
约车看房
推荐经纪人
基本信息
基本属性
区域
南湾
片区
南湾
小区
华发新城六期
产权
商品房
楼层
高楼层/共28楼
电梯
有
状态
已使用
税费
满2年
装修
精装
朝向
东
空间结构
平层
楼龄
2013年
家具
全齐
家电
全齐
地板
磁砖
景观
园景
小学
杨匏安纪念学校
中学
第十三中学
税费参考
承担卖房税费
约 10000 元
承担买房税费
买房税费主要包括:契税:(1%、1.5%、2%、3%)首套或二套<140㎡按1%,首套>140㎡按1.5%,二套>140㎡按2%,第三套起及非住宅按3%
楼层保密说明
按照总层高/3,分为低楼层、中楼层、高楼层,共三个段
* 以上基本属性和交易属性信息仅供参考,购房时以房产证/不动产证信息为准
房源卖点
卖点一
1 楼下是珠海现有最大型购物娱乐商场,电影院,商场,餐厅 ,图书馆,下楼即到。
卖点二
2 珠海头牌地产和物业,小区管理好,环境优美静谧。
卖点三
3 地处南湾高端住宅区的核心位置,楼下就是巴士站,交通方便,便于到达珠海各处
卖点四
4 房子全新精装 高层无遮挡 远眺前山河 无敌观景台 通风采光极好
卖点五
5 家私家电齐全 豪华装修 拎包入住
推荐经纪人
张英
华发五期分行
高端物业
资深经纪人
别墅
中高档公寓
4000781128 转 1421
我的微信
扫一扫添加微信
柳廷伟
华发五期分行
高端物业
普通话
有车
写字楼
4000781128 转 1020
我的微信
扫一扫添加微信
刘建文
华发新城一行
资深经纪人
高端物业
粤语
中高档公寓
4000781128 转 1478
我的微信
扫一扫添加微信
黄斌斌
南湾国际分行
高端物业
别墅
商铺
写字楼
4000781128 转 1855
我的微信
扫一扫添加微信
杨文
南湾国际分行
高端物业
有车
大专以上学历
资深经纪人
4000781128 转 1739
我的微信
扫一扫添加微信
李博1
华发五期分行
高端物业
资深经纪人
别墅
有车
4000781128 转 1440
我的微信
扫一扫添加微信
房源图片
房贷计算器
房屋总价
100.00
贷款成数
2成
3成
4成
5成
6成
7成
8成
8.5成
贷款类别
商业贷款
公积金贷款
组合贷款
贷款年限
30年(360期)
29年(348期)
28年(336期)
27年(324期)
26年(312期)
25年(300期)
24年(288期)
23年(276期)
22年(264期)
21年(252期)
20年(240期)
19年(228期)
18年(216期)
17年(204期)
16年(192期)
15年(180期)
14年(168期)
13年(156期)
12年(144期)
11年(132期)
10年(120期)
9年(108期)
8年(96期)
7年(84期)
6年(72期)
5年(60期)
4年(48期)
3年(36期)
2年(24期)
1年(12期)
商贷贷款额
商贷利率
首套3.00
二套3.00
公积金贷款额
公积金利率
参考利率2.85
参考利率3.325
立即计算
等额本息还款
等额本金还款
首付
万
贷款总额
万
月供
元
总利息
万
本息总额
万
首付
万
贷款总额
万
月供
元
每月递减
元
总利息
万
本息总额
万
注:本次计算仅作为购房参考,结合实际情况了解更精确首付、贷款方案,建议咨询专业顾问
首付和贷款情况咨询
航拍信息
全屏观看
地理位置
交通
教育
医疗
购物
生活
娱乐
公交站
地铁站
小区信息
查看小区 >
华发新城六期
小区地址
香洲区珠海大道1号
建造年代
2013
小区物业
华发物业
开 发 商
华发实业股份有限公司
管 理 费
2.9 元/平米*月
在售 108 套
在租 30 套
查看全部
历史成交
查看更多 >
同类型二手房
查看全部
同类型租房
查看全部
预车看房
预约提交成功我们有专人与您取得联系
预约日期
随时
星期三
27
星期四
28
星期五
29
星期六
30
星期日
31
星期一
1
星期二
2
您的称呼
先生
女士
手机号码
输入识别码
短信验证码
获取验证码
其他要求
提交预约
推荐经纪人
选择推荐经纪人进行咨询联系
张英
华发五期分行
高端物业
资深经纪人
别墅
中高档公寓
我的微信
扫一扫添加微信
扫码拨号
15919156628
柳廷伟
华发五期分行
高端物业
普通话
有车
写字楼
我的微信
扫一扫添加微信
扫码拨号
13825655121
刘建文
华发新城一行
资深经纪人
高端物业
粤语
中高档公寓
我的微信
扫一扫添加微信
扫码拨号
18923391408
黄斌斌
南湾国际分行
高端物业
别墅
商铺
写字楼
我的微信
扫一扫添加微信
扫码拨号
18923369709
杨文
南湾国际分行
高端物业
有车
大专以上学历
资深经纪人
我的微信
扫一扫添加微信
扫码拨号
13825651066
李博1
华发五期分行
高端物业
资深经纪人
别墅
有车
我的微信
扫一扫添加微信
扫码拨号
13527247234
手机登陆
密码登陆
立即登陆
立即登陆
虚假举报
房源ID(1363408)
您的称呼
手机号码
补充描述
验证码:
提 交
【房源】虚假举报属实,奖励 100 元。
【房评】虚假举报属实,奖励 50 元。
在线委托
房源对比
咨询客服QQ
联系客服
474738599
400-168-0808
咨询客服电话
09:30 - 18:30
周一至周六
微信公众号
随时随地关注珠海楼市
微信小程序
正顺好房官方小程序
官方APP
扫描下载正顺好房网APP
专家答疑
在线留言
返回顶部
在线留言
感谢您一直以来对正顺好房网的关注和支持,如果您在使用过程中遇到问题或意见建议请留言反馈给我们,谢谢!
如需我们跟您联系或答复的话,请您留下联系方式。
姓名
电话
E-mail
*
反馈内容
验证码
提交反馈
房源对比
修改
取消
新 房
二手房
租 房