二手房
下载正顺好房APP
华发蔚蓝堡 3房2卫南北通一梯2户精装带小院正常出售 业主诚心出售
园林景
空气清新
采光充足
双阳台
华发蔚蓝堡
300.0
23414元/㎡
首付45万 贷款255万 月供11450元,30年(仅供参考)
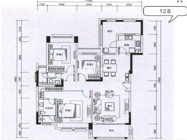
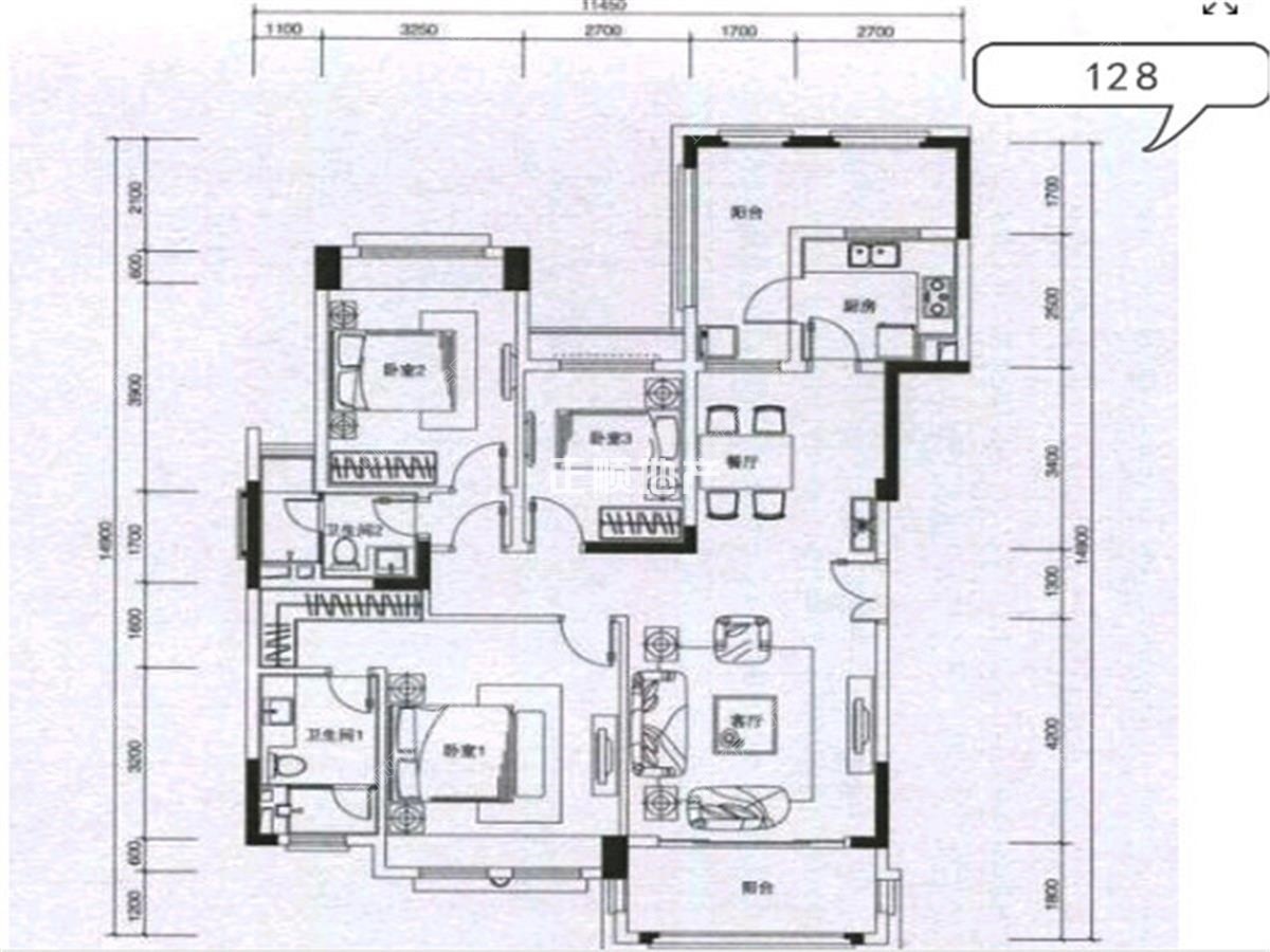
3房2厅2卫
低楼层/共12楼
128㎡
精装
2013年建
住宅
所在区域
高新
房源编号
1362594
更新日期
2026-03-15
OKHOME承诺真实房源,虚假举报有奖
加入对比
约车看房
联系客服
基本信息
基本属性
区域
高新
片区
后环
小区
华发蔚蓝堡 S3区
产权
商品房
楼层
低楼层/共12楼
电梯
状态
已使用
税费
满五唯一
装修
精装
朝向
空间结构
平层
楼龄
2013年
家具
家电
少量
地板
厅磁房木
景观
无景
小学
中大附小(后环校区)
中学
中山大学附属中学
税费参考
承担卖房税费
约 30000 元
承担买房税费
买房税费主要包括:契税:(1%、1.5%、2%、3%)首套或二套<140㎡按1%,首套>140㎡按1.5%,二套>140㎡按2%,第三套起及非住宅按3%
楼层保密说明
按照总层高/3,分为低楼层、中楼层、高楼层,共三个段
* 以上基本属性和交易属性信息仅供参考,购房时以房产证/不动产证信息为准
房源卖点
卖点一
业主诚心出售 采光充足 高使用率 中空设计 厅大房大
卖点二
本人任光立实地看过此房,我和业主单独联系维护,欢迎实地看房;
推荐经纪人
王鲁俊1 菁华名苑分店
4000781128 转 1255
房源图片
sE37F7D7C5D354A969B0932F0DF856FC6.jpg
s9FEE646767634EC2B296AADF90D0316F.jpg
sCED365FACE3F42DD92A49009E752E45B.jpg
s429F2B9CB09A4BC38B9D859BD45E6414.jpg
s74FA585182B94887AE565E69748100A8.jpg
sE37CDCE61B3F46E290F75BCA69648967.jpg
s41745A63F6E348CBBA4A7B0387F6AC44.jpg
户型图
房贷计算器
航拍信息
地理位置
交通
教育
医疗
购物
生活
娱乐
公交站
地铁站
小区信息
华发蔚蓝堡 S3区
小区地址
香洲区情侣北路3999
建造年代
2013
小区物业
珠海华发物业管理有限公司
开 发 商
珠海华发房地产开发经营有限公司
管 理 费
3.0 元/平米*月
sD0E60CBE0C954D10AFA79D547E047CF5.jpg
5e195f04eff7f7eafdedbb2d8738de4.jpg
8148e4a0897ddf1d5882f96cdcb67cb.jpg
微信图片_20181123212420.jpg
微信图片_20181123212433.jpg
微信图片_20181123212437.jpg
sEBCADA87F2ED4C0FB1F8EF3A09BE1B27.jpg
微信图片_20190226104700.jpg
fdaf5129ff30c0ad13e4f1fdf5f7926.jpg
37ae8c4208818047e23d19735d5c6d0.jpg
ec41a60415fb601a74a8813de62c090.jpg
s4E3EF3CA059F40118F8BFA46CEC55231.jpg
s9353758653B64EAC8E95CFBBC7C63C0C.jpg
87e8b25005d81bb91810796d1be7927.jpg
475c4fdd2d40c03247eb3252784406e.jpg
s1FA6036618EB4514B218D7BE2DB32138.jpg
sE64A3F3D4FC644B9A4B98599DE7DFDBC.jpg
f2e9b2a4d60c3ceac885a6147154bba.jpg
1892f08deb61f47cf7f6c1e69fb111b.jpg
a1051e1d22478fc99955aedaebf183e.jpg
sE533C3B0E9584EEF8519B1E3F7CF51CC.jpg
sD0C9027596384859B4F81B442E0F4689.jpg
外观
sD3B31E35E89144CFB9778BA759454D26.jpg
00d23bcf2bc5942beedb214b6f0bc5e.jpg
s3E43B709B977493FB66E9222A59225AE.jpg
蔚蓝堡小区
s99A009144C1047378F439F12FC860862.jpg
afcc7624d5aca2ca164c71c01ea57fc.jpg
sA7E998F64C1F4EB6BCDF3FBEBF6E1A61.jpg
63882a7b0a75f664d4b61f7f280fee6.jpg
sF26882C374224A178B42EB78EFC4C517.jpg
sD33896CBF9DE4C33BAC6ECE7BD89B555.jpg
0c5aed50992a016f23bcc1c74e6d11a.jpg
蔚蓝堡小区
微信图片_20180724104701.jpg
7ca64369e71ea108dac4e8f5b7cec03.jpg
668ec62893c2e9bc73e2a9b0e16af82.jpg
蔚蓝堡小区
微信图片_20180724104652.jpg
b1ea746858a2e7cf6e8d070c2b25bd7.jpg
ce138904d33e7c66c43bff96f852660.jpg
fe0b2a670cf023999ca2809856f9903.jpg
查看全部
历史成交
同类型二手房
查看全部
同类型租房
查看全部