首页
新房
二手房
租房
工商铺
小区
资讯
在线委托
关于我们
二手房
地图找房
空中看房
下载正顺好房APP
下载正顺好房APP
好房好生活OKHOME
湾仔沙繁华地段小区 四房两厅 各付各税 中间楼层 南北通户型 大阳台
空气清新
视野开阔
格局方正
采光充足
收藏
分享
分享房源
扫一扫推荐给朋友
您的位置:
正顺好房网
>
二手房
>
详情页
提示:您的浏览器不支持视频播放,请升级浏览器》》
VR看房
视频看房
封面
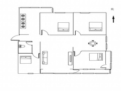
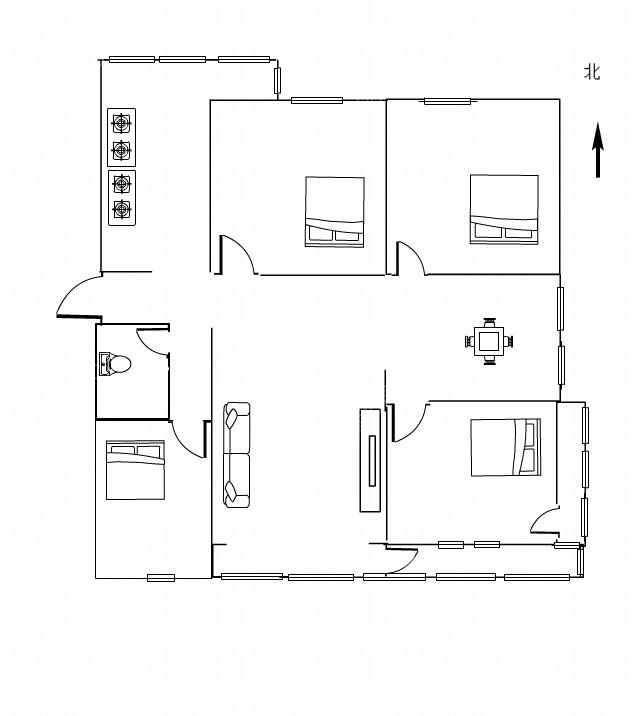
户型图
卧室
卧室
卧室
卧室
卫生间
厨房
客厅
阳台
阳台
阳台
餐厅
中心里
168.0
万
15295元/㎡
首付25万 贷款143万 月供6412元,30年(仅供参考)
4房2厅1卫
高楼层/共6楼
110㎡
简装
南北通
1990年建
住宅
所在区域
老香洲
房源编号
1356584
更新日期
2026-04-07
OKHOME承诺真实房源,
虚假举报
有奖
加入对比
约车看房
联系客服
基本信息
房源描述
房源点评
房源照片
小区信息
地理位置
加入对比
约车看房
推荐经纪人
基本信息
基本属性
区域
老香洲
片区
凤凰南
小区
中心里
产权
房改房
楼层
高楼层/共6楼
电梯
无
状态
已使用
税费
满五唯一
装修
简装
朝向
南北通
空间结构
平层
楼龄
1990年
家具
少量
家电
少量
地板
磁砖
景观
街景
小学
香洲二小
中学
紫荆中学桃园校区
税费参考
承担卖房税费
约 16800 元
承担买房税费
买房税费主要包括:契税:(1%、1.5%、2%、3%)首套或二套<140㎡按1%,首套>140㎡按1.5%,二套>140㎡按2%,第三套起及非住宅按3%
楼层保密说明
按照总层高/3,分为低楼层、中楼层、高楼层,共三个段
* 以上基本属性和交易属性信息仅供参考,购房时以房产证/不动产证信息为准
房源卖点
卖点一
小区位于湾仔沙,有小区管理。喜欢南北通的可以考虑一下
卖点二
1、此房户型非常好,南北通透户型,简单装修,对装修有要求需要装修一下,
卖点三
2、生活方便,有小区管理。
卖点四
3、桃园,二小学区,学校就在附近,小孩上下学方便
卖点五
4、交通方便,临近公交车站,非常方便
推荐经纪人
陈杜乾
丹田一小分行
粤语
学区房
普通话
中高档公寓
4000781128 转 1495
我的微信
扫一扫添加微信
蔡丽凤
夏美分行
粤语
普通话
资深经纪人
4000781128 转 1432
我的微信
扫一扫添加微信
陈成松
凤凰花园三分行
中高档公寓
高端物业
别墅
写字楼
4000781128 转 1754
我的微信
扫一扫添加微信
胡清霞
金域蓝湾分店
学区房
大专以上学历
普通话
粤语
4000781128 转 1820
我的微信
扫一扫添加微信
房源房评
梁芬芬
丹田一小分行
本人就是这个小区的,这个房子使用率非常高,可以做到4
+1房,南北通,采光好,黄金楼层小区有管理靠市政府旁边,停车位充足,二小学区,周边商业完善,出门就是公交站,步行5分钟到海边,步行4分钟到医院,步行3分钟到学校,想了解更多房源信息或者看房可以联系我,谢谢
梁芬芬
丹田一小分行
本人就是这个小区的,这个房子使用率非常高,南北通,采光好,小区有管理靠市政府旁边,停车位充足,二小学区,周边商业完善,出门就是公交站,步行5分钟到海边,步行4分钟到医院,步行3分钟到学校,想了解更多房源信息或者看房可以联系我,谢谢
梁芬芬
丹田一小分行
我就是住这个小区,有小区管理,停车位充足的,大四房,南北通,采光好,少有放盘,二小学区,周边配套完善,需要看房请联系我,谢谢
梁芬芬
丹田一小分行
本人就是住这个小区,1、此房户型非常好,南北通透户型,简单装修,对装修有要求需要装修一下2、生活方便,有小区管理。3、桃园,二小学区,学校就在附近,小孩上下学方便4、交通方便,门口就是公交车站,非常方便,看房请联系我,谢谢
查看全部
房源图片
查看全部
房贷计算器
房屋总价
168.00
贷款成数
2成
3成
4成
5成
6成
7成
8成
8.5成
贷款类别
商业贷款
公积金贷款
组合贷款
贷款年限
30年(360期)
29年(348期)
28年(336期)
27年(324期)
26年(312期)
25年(300期)
24年(288期)
23年(276期)
22年(264期)
21年(252期)
20年(240期)
19年(228期)
18年(216期)
17年(204期)
16年(192期)
15年(180期)
14年(168期)
13年(156期)
12年(144期)
11年(132期)
10年(120期)
9年(108期)
8年(96期)
7年(84期)
6年(72期)
5年(60期)
4年(48期)
3年(36期)
2年(24期)
1年(12期)
商贷贷款额
商贷利率
首套3.00
二套3.00
公积金贷款额
公积金利率
参考利率2.85
参考利率3.325
立即计算
等额本息还款
等额本金还款
首付
万
贷款总额
万
月供
元
总利息
万
本息总额
万
首付
万
贷款总额
万
月供
元
每月递减
元
总利息
万
本息总额
万
注:本次计算仅作为购房参考,结合实际情况了解更精确首付、贷款方案,建议咨询专业顾问
首付和贷款情况咨询
航拍信息
全屏观看
地理位置
交通
教育
医疗
购物
生活
娱乐
公交站
地铁站
小区信息
查看小区 >
中心里
小区地址
凤凰南路1001号
建造年代
1990
小区物业
不详
开 发 商
管 理 费
0.0 元/平米*月
在售 5 套
在租 2 套
查看全部
历史成交
同类型二手房
查看全部
同类型租房
查看全部
预车看房
预约提交成功我们有专人与您取得联系
预约日期
随时
星期二
7
星期三
8
星期四
9
星期五
10
星期六
11
星期日
12
星期一
13
您的称呼
先生
女士
手机号码
输入识别码
短信验证码
获取验证码
其他要求
提交预约
推荐经纪人
选择推荐经纪人进行咨询联系
陈杜乾
丹田一小分行
粤语
学区房
普通话
中高档公寓
我的微信
扫一扫添加微信
扫码拨号
17322074264
蔡丽凤
夏美分行
粤语
普通话
资深经纪人
我的微信
扫一扫添加微信
扫码拨号
17841615839
陈成松
凤凰花园三分行
中高档公寓
高端物业
别墅
写字楼
我的微信
扫一扫添加微信
扫码拨号
13543034651
胡清霞
金域蓝湾分店
学区房
大专以上学历
普通话
粤语
我的微信
扫一扫添加微信
扫码拨号
18928057447
手机登陆
密码登陆
立即登陆
立即登陆
虚假举报
房源ID(1356584)
您的称呼
手机号码
补充描述
验证码:
提 交
【房源】虚假举报属实,奖励 100 元。
【房评】虚假举报属实,奖励 50 元。
在线委托
房源对比
咨询客服QQ
联系客服
474738599
400-168-0808
咨询客服电话
09:30 - 18:30
周一至周六
微信公众号
随时随地关注珠海楼市
微信小程序
正顺好房官方小程序
官方APP
扫描下载正顺好房网APP
专家答疑
在线留言
返回顶部
在线留言
感谢您一直以来对正顺好房网的关注和支持,如果您在使用过程中遇到问题或意见建议请留言反馈给我们,谢谢!
如需我们跟您联系或答复的话,请您留下联系方式。
姓名
电话
E-mail
*
反馈内容
验证码
提交反馈
房源对比
修改
取消
新 房
二手房
租 房