二手房
下载正顺好房APP
海怡湾畔怡峰 顶楼复式 一线海景
园林景
格局方正
配套成熟
稳定回报
海怡湾畔
680.0
23063元/㎡
首付102万 贷款578万 月供25952元,30年(仅供参考)
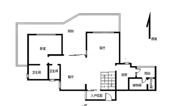
4房2厅5卫
高楼层/共31楼
295㎡
毛坯
东南
2008年建
住宅
所在区域
高新
房源编号
1202433
更新日期
2026-02-12
OKHOME承诺真实房源,虚假举报有奖
加入对比
约车看房
联系客服
基本信息
基本属性
区域
高新
片区
唐家
小区
海怡湾畔 怡峯
产权
商品房
楼层
高楼层/共31楼
电梯
状态
全新未住
税费
满五唯一
装修
毛坯
朝向
东南
空间结构
复式
楼龄
2008年
家具
家电
地板
水泥地
景观
无景
小学
中大附小
中学
中大附中
税费参考
承担卖房税费
约 68000 元
承担买房税费
买房税费主要包括:契税:(1%、1.5%、2%、3%)首套或二套<140㎡按1%,首套>140㎡按1.5%,二套>140㎡按2%,第三套起及非住宅按3%
楼层保密说明
按照总层高/3,分为低楼层、中楼层、高楼层,共三个段
* 以上基本属性和交易属性信息仅供参考,购房时以房产证/不动产证信息为准
房源卖点
卖点一
1,唐家大型 小区 大户型 看 房方便
卖点二
2,看一线海景 少有放盘 清新
卖点三
3,诚心出售 格局方正 南北通透
卖点四
4. 大型小区,生活方便
卖点五
5. 交通方便,多条公交线路经过
推荐经纪人
李杏丽 菁华名苑分店
4000781128 转 1341
房源图片
sA8BDFAAC32E64AD8A0BDFBD8793C75AD.jpg
s860902B5311845A99BC1DBF830FE6969.jpg
s0558826436E5486985003AA2A9CD2145.jpg
sA9C15144348843C7AC63E11C58E337F7.jpg
s3810B21B1CC54021AB5B916088D26162.jpg
s4FD59C5948884D7F8598BB742097B698.jpg
s00D58EAFD2CB42C9871C39B6D84D9F59.jpg
s3DDFCC1C817E4F0A861138C4181CF8B4.jpg
s2ED48B7F9E154E9C8FF57899CA09700D.jpg
sBA7C9DD85B1C476CBB50776526375411.jpg
s973439074E554F7196204BE859CBEAE0.jpg
户型图
户型图
户型图
查看全部
房贷计算器
航拍信息
地理位置
交通
教育
医疗
购物
生活
娱乐
公交站
地铁站
小区信息
海怡湾畔 怡峯
小区地址
高新区金塘路333号
建造年代
2008
小区物业
自主物业
开 发 商
和记黄埔地产
管 理 费
2.8 元/平米*月
s424877CD00C7491C8D2C20949FE87438.jpg
s39F27FC914E64DE1BD1F24DADC1A2374.png
s0288F913F4E448F682E01CA4FDBA11A2.jpg
s71920209695340F1B528528041D4A3C6.png
sCF4958DF9CEF4063AA02220D3FD76566.png
sB29E2339A61B4545BA10E6DB801941C9.png
s4D01086709E145869D11AB0E56853841.png
sA32F3F8F8FC24B4C900EFDC6CC40DBA9.png
小区
sE4A9B33DB58E4F688C989C744980E6EF.png
sF2DDD00D65364B59A4A81F675B999123.png
客厅
客厅
s57A5615191644210BF42F33741EA75E6.png
客厅
园林
s54DD26E0F7764BDF92FD8B1DA826A83C.png
园林
园林
园林
园林
园林
园林
sC3D5934151C34D278A841157E2E3D4BF.jpg
s11C344D1A3F34F4E8289ECAE857FE38C.jpg
s147F6EE54E8942E78DF6378DF62BA826.jpg
园林
s306FDB1B5F8840C4970CA222E272CF01.jpg
阳台
sF940E18D629C42C5A57BBD10AAF36D5B.jpg
s57C7F44D50774420863B541E4B707121.jpg
微信图片_20180915115207.jpg
微信图片_20180915115234.jpg
s34DD94D7559E4467BF7EEBA12C98BA82.jpg
sDF2E0B2FA53D495481DBBDAFD5AC07A8.jpg
微信图片_20190223141915.jpg
sC3EF9C4D00004E02969A42F9B0C1975F.jpg
s6EDE5125277E4FBEA36312994228D2F1.jpg
632318646786093169.jpg
微信图片_20190308105049.jpg
微信图片_20180915115154.jpg
微信图片_20190223141932.jpg
微信图片_20190223142004.jpg
微信图片_20190308105219.jpg
微信图片_20190308105227.jpg
微信图片_20190308105118.jpg
微信图片_20190308105147.jpg
微信图片_20190308105858.jpg
微信图片_20190308105913.jpg
638fd4bf61f140fee8c5f4c3e301dd7.jpg
微信图片_20190308105927.jpg
s8DFD50C4D7F4462EA607EF264EA194FE.png
sD4330B5E07C94034B9D3710128E1C98F.png
微信图片_20190308105957.jpg
微信图片_20190308110008.jpg
微信图片_20190308110024.jpg
微信图片_20190308110351.jpg
微信图片_20190308110413.jpg
微信图片_20190308110436.jpg
微信图片_20190308110444.jpg
微信图片_20190308110458.jpg
微信图片_20190308110512.jpg
微信图片_20190308110518.jpg
s8CDE8A37A5A94A818DFF2BBD4FB46735.png
s4639A107B43141B79FF24F8422F62EF6.png
客厅
查看全部
历史成交
同类型二手房
查看全部
同类型租房
查看全部