首页
新房
二手房
租房
工商铺
小区
资讯
在线委托
关于我们
二手房
地图找房
空中看房
下载正顺好房APP
下载正顺好房APP
好房好生活OKHOME
丰达花园,单间25平方左右,有独立卫生间。家电齐全,可拎包入住。
视野开阔
空气清新
格局方正
园林景
收藏
分享
分享房源
扫一扫推荐给朋友
您的位置:
正顺好房网
>
二手房
>
详情页
提示:您的浏览器不支持视频播放,请升级浏览器》》
VR看房
视频看房
卧室
卧室
卧室
卧室
过道
卧室
厨房
阳台
阳台
卫生间
卫生间
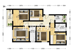
户型图
丰达花园
123.0
万
12472元/㎡
首付18万 贷款105万 月供4694元,30年(仅供参考)
1房1厅1卫
中楼层/共8楼
99㎡
精装
东南
1994年建
住宅
所在区域
柠溪
房源编号
1144722
更新日期
2026-01-27
OKHOME承诺真实房源,
虚假举报
有奖
加入对比
约车看房
联系客服
基本信息
房源描述
房源点评
房源照片
小区信息
地理位置
加入对比
约车看房
推荐经纪人
基本信息
基本属性
区域
柠溪
片区
小区
丰达花园
产权
商品房
楼层
中楼层/共8楼
电梯
有
状态
已使用
税费
满2年
装修
精装
朝向
东南
空间结构
平层
楼龄
1994年
家具
全齐
家电
全齐
地板
磁砖
景观
无景
小学
十一小
中学
第八中学
税费参考
承担卖房税费
约 12300 元
承担买房税费
买房税费主要包括:契税:(1%、1.5%、2%、3%)首套或二套<140㎡按1%,首套>140㎡按1.5%,二套>140㎡按2%,第三套起及非住宅按3%
楼层保密说明
按照总层高/3,分为低楼层、中楼层、高楼层,共三个段
* 以上基本属性和交易属性信息仅供参考,购房时以房产证/不动产证信息为准
房源卖点
卖点一
丰达花园,单间25平方左右,有独立卫生间。家电齐全,可拎包入住。
卖点二
小区周边设施齐全 房间格局好 采光充足。
推荐经纪人
孙福晶
岭南世家分行
4000781128 转 1564
我的微信
扫一扫添加微信
麦雪梅
岭南世家分行
资深经纪人
学区房
普通话
高端物业
4000781128 转 1780
我的微信
扫一扫添加微信
房源图片
查看全部
房贷计算器
房屋总价
123.00
贷款成数
2成
3成
4成
5成
6成
7成
8成
8.5成
贷款类别
商业贷款
公积金贷款
组合贷款
贷款年限
30年(360期)
29年(348期)
28年(336期)
27年(324期)
26年(312期)
25年(300期)
24年(288期)
23年(276期)
22年(264期)
21年(252期)
20年(240期)
19年(228期)
18年(216期)
17年(204期)
16年(192期)
15年(180期)
14年(168期)
13年(156期)
12年(144期)
11年(132期)
10年(120期)
9年(108期)
8年(96期)
7年(84期)
6年(72期)
5年(60期)
4年(48期)
3年(36期)
2年(24期)
1年(12期)
商贷贷款额
商贷利率
首套3.00
二套3.00
公积金贷款额
公积金利率
参考利率2.85
参考利率3.325
立即计算
等额本息还款
等额本金还款
首付
万
贷款总额
万
月供
元
总利息
万
本息总额
万
首付
万
贷款总额
万
月供
元
每月递减
元
总利息
万
本息总额
万
注:本次计算仅作为购房参考,结合实际情况了解更精确首付、贷款方案,建议咨询专业顾问
首付和贷款情况咨询
地理位置
交通
教育
医疗
购物
生活
娱乐
公交站
地铁站
小区信息
查看小区 >
丰达花园
小区地址
香洲区柠溪路155号
建造年代
1994
小区物业
市物业管理公司
开 发 商
市房产开发公司
管 理 费
0.6 元/平米*月
在售 22 套
在租 8 套
查看全部
历史成交
查看更多 >
同类型二手房
查看全部
同类型租房
查看全部
预车看房
预约提交成功我们有专人与您取得联系
预约日期
随时
星期二
27
星期三
28
星期四
29
星期五
30
星期六
31
星期日
1
星期一
2
您的称呼
先生
女士
手机号码
输入识别码
短信验证码
获取验证码
其他要求
提交预约
推荐经纪人
选择推荐经纪人进行咨询联系
孙福晶
岭南世家分行
我的微信
扫一扫添加微信
扫码拨号
13709687459
麦雪梅
岭南世家分行
资深经纪人
学区房
普通话
高端物业
我的微信
扫一扫添加微信
扫码拨号
15089192540
手机登陆
密码登陆
立即登陆
立即登陆
虚假举报
房源ID(1144722)
您的称呼
手机号码
补充描述
验证码:
提 交
【房源】虚假举报属实,奖励 100 元。
【房评】虚假举报属实,奖励 50 元。
在线委托
房源对比
咨询客服QQ
联系客服
474738599
400-168-0808
咨询客服电话
09:30 - 18:30
周一至周六
微信公众号
随时随地关注珠海楼市
微信小程序
正顺好房官方小程序
官方APP
扫描下载正顺好房网APP
专家答疑
在线留言
返回顶部
在线留言
感谢您一直以来对正顺好房网的关注和支持,如果您在使用过程中遇到问题或意见建议请留言反馈给我们,谢谢!
如需我们跟您联系或答复的话,请您留下联系方式。
姓名
电话
E-mail
*
反馈内容
验证码
提交反馈
房源对比
修改
取消
新 房
二手房
租 房