首页
新房
二手房
租房
工商铺
小区
资讯
在线委托
关于我们
二手房
地图找房
空中看房
下载正顺好房APP
下载正顺好房APP
好房好生活OKHOME
珠海市 前山河旁 荣泰成墅 空中别墅 精装房 看河景
高使用率
黄金楼层
生活中心
交通便利
收藏
分享
分享房源
扫一扫推荐给朋友
您的位置:
正顺好房网
>
二手房
>
详情页
VR看房
卧室
阳台
客厅
书房
其他
卧室
卧室
卧室
餐厅
客厅
其他
阳台
厨房
卧室
客厅
卫生间
卫生间
卫生间
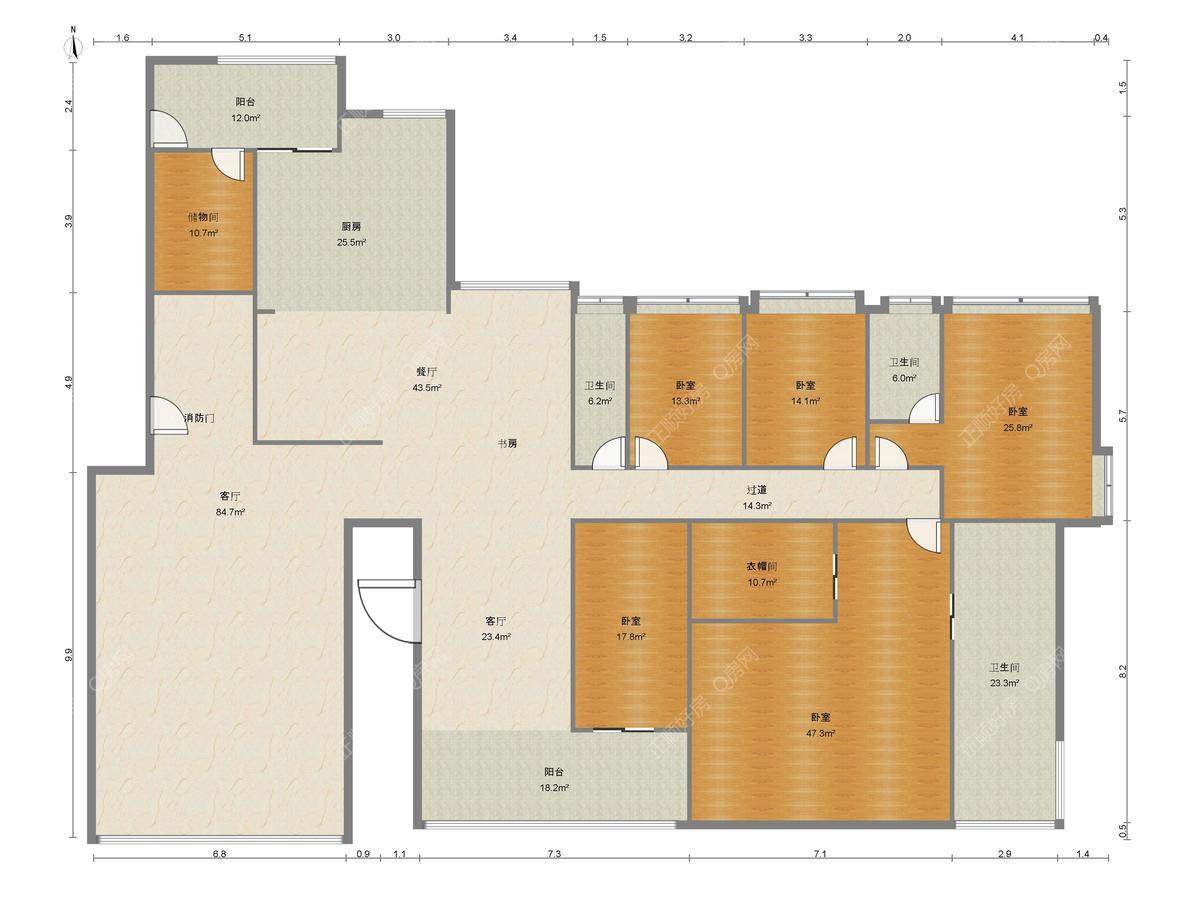
户型图
荣泰城墅
900.0
万
23731元/㎡
首付135万 贷款765万 月供34348元,30年(仅供参考)
6房3厅3卫
低楼层/共24楼
379㎡
精装
南北通
2012年建
住宅
所在区域
前山
房源编号
1126114
更新日期
2025-11-07
OKHOME承诺真实房源,
虚假举报
有奖
加入对比
约车看房
联系客服
基本信息
房源描述
房源点评
房源照片
小区信息
地理位置
加入对比
约车看房
推荐经纪人
基本信息
基本属性
区域
前山
片区
造贝
小区
荣泰城墅
产权
商品房
楼层
低楼层/共24楼
电梯
有
状态
已使用
税费
满2年
装修
精装
朝向
南北通
空间结构
平层
楼龄
2012年
家具
无
家电
无
地板
磁砖
景观
河景
小学
荣泰小学
中学
11中-造贝中学
税费参考
承担卖房税费
约 90000 元
承担买房税费
买房税费主要包括:契税:(1%、1.5%、2%、3%)首套或二套<140㎡按1%,首套>140㎡按1.5%,二套>140㎡按2%,第三套起及非住宅按3%
楼层保密说明
按照总层高/3,分为低楼层、中楼层、高楼层,共三个段
* 以上基本属性和交易属性信息仅供参考,购房时以房产证/不动产证信息为准
房源卖点
卖点一
前山河边 荣泰城墅 大平层6房 带装修 面积实用450平左右 小区管理好 周边生活交通配套齐全 看房方便 业主诚心卖
推荐经纪人
陈江龙
总经办
资深经纪人
高端物业
别墅
学区房
4000781128 转 1027
我的微信
扫一扫添加微信
胡桂良
钰海山庄二分行
别墅
商铺
写字楼
高端物业
4000781128 转 1090
我的微信
扫一扫添加微信
罗意强
金域华府分行
高端物业
粤语
学区房
资深经纪人
4000781128 转 1068
我的微信
扫一扫添加微信
房源房评
罗叶
海悦云天一行
您好 我是正顺好房十二小分店的罗叶 本人亲自带客看过房子现场 实景了解 业主情况了解 欢迎随时联系 24小接听 13676059735
一、荣泰城墅 位于前山河北面 壮志学校 格力学校 十一中都在周边
二、此房户型为6房2厅带大阳台 带保姆房带保姆专用电梯 看河景 赠送面积超60平 格局相当实用 南北通 属市区稀有大平层在卖
房源图片
查看全部
房贷计算器
房屋总价
900.00
贷款成数
2成
3成
4成
5成
6成
7成
8成
8.5成
贷款类别
商业贷款
公积金贷款
组合贷款
贷款年限
30年(360期)
29年(348期)
28年(336期)
27年(324期)
26年(312期)
25年(300期)
24年(288期)
23年(276期)
22年(264期)
21年(252期)
20年(240期)
19年(228期)
18年(216期)
17年(204期)
16年(192期)
15年(180期)
14年(168期)
13年(156期)
12年(144期)
11年(132期)
10年(120期)
9年(108期)
8年(96期)
7年(84期)
6年(72期)
5年(60期)
4年(48期)
3年(36期)
2年(24期)
1年(12期)
商贷贷款额
商贷利率
首套3.00
二套3.00
公积金贷款额
公积金利率
参考利率2.85
参考利率3.325
立即计算
等额本息还款
等额本金还款
首付
万
贷款总额
万
月供
元
总利息
万
本息总额
万
首付
万
贷款总额
万
月供
元
每月递减
元
总利息
万
本息总额
万
注:本次计算仅作为购房参考,结合实际情况了解更精确首付、贷款方案,建议咨询专业顾问
首付和贷款情况咨询
航拍信息
全屏观看
地理位置
交通
教育
医疗
购物
生活
娱乐
公交站
地铁站
小区信息
查看更多 >
荣泰城墅
小区地址
香洲区前河北路1386号
建造年代
2012
小区物业
开 发 商
管 理 费
0.0 元/平米*月
在售 5 套
在租 0 套
同类型二手房
查看全部
同类型租房
查看全部
预车看房
预约提交成功我们有专人与您取得联系
预约日期
随时
星期五
7
星期六
8
星期日
9
星期一
10
星期二
11
星期三
12
星期四
13
您的称呼
先生
女士
手机号码
短信验证码
获取验证码
输入识别码
其他要求
提交预约
推荐经纪人
选择推荐经纪人进行咨询联系
陈江龙
总经办
资深经纪人
高端物业
别墅
学区房
我的微信
扫一扫添加微信
扫码拨号
13825655567
胡桂良
钰海山庄二分行
别墅
商铺
写字楼
高端物业
我的微信
扫一扫添加微信
扫码拨号
13825655595
罗意强
金域华府分行
高端物业
粤语
学区房
资深经纪人
我的微信
扫一扫添加微信
扫码拨号
13825651718
手机登陆
密码登陆
立即登陆
立即登陆
虚假举报
房源ID(1126114)
您的称呼
手机号码
补充描述
验证码:
提 交
【房源】虚假举报属实,奖励 100 元。
【房评】虚假举报属实,奖励 50 元。
在线委托
房源对比
咨询客服QQ
联系客服
474738599
400-168-0808
咨询客服电话
09:30 - 18:30
周一至周六
微信公众号
随时随地关注珠海楼市
微信小程序
正顺好房官方小程序
官方APP
扫描下载正顺好房网APP
专家答疑
在线留言
返回顶部
在线留言
感谢您一直以来对正顺好房网的关注和支持,如果您在使用过程中遇到问题或意见建议请留言反馈给我们,谢谢!
如需我们跟您联系或答复的话,请您留下联系方式。
姓名
电话
E-mail
*
反馈内容
验证码
提交反馈
房源对比
修改
取消
新 房
二手房
租 房